Residencia Universitaria Altamira
2022 – Actualidad
Ubicacion. 1500 Av. Juan Domingo Peron
Proyecto. Resdencia universitaria
Superficie. 2.000m2
Status. Terminada
Residencia Universitaria
AltamiraÂ
2022 – ActualidadÂ
UbicaciĂ³n. 1500 Av. Juan Domingo PeronÂ
Proyecto. Residencia Universitaria
Superficie. 2.000m2
Status. Terminada
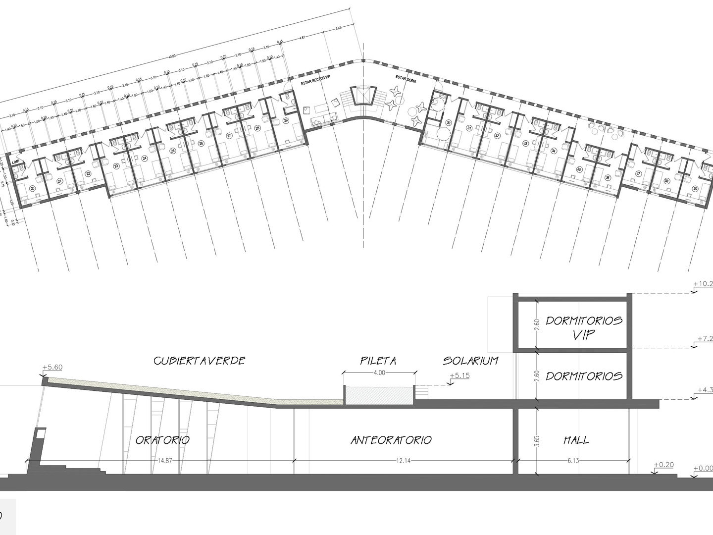
Edificio Residencial para el fomento de la cultura y la educacion. Programa mixto, donde lo public y privado convergen naturalmente sin modificar la vida cotidiana de sus residentes.
Edificio Residencial para el fomento de la cultura y la educacion. Programa mixto, donde lo public y privado convergen naturalmente sin modificar la vida cotidiana de sus residentes.









